Tính năng nổi bật
- Công suất tiêu thụ ở chế độ nghỉ: 1 W
- Tần số vô tuyến: 2,4 GHz
- Mức độ bảo vệ: II
- Trọn bộ gồm: 1 bộ cơ cấu tay nâng điện E-drive (trái), 1 nắp chụp cho bộ cơ cấu (trái), 1 bộ truyền động, 1 cáp kết nối, 2 điều khiển nút nhất, 1 cánh tay thay thế Free Swing.
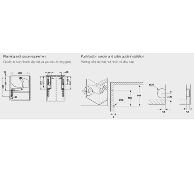
Thông số kỹ thuật
- Chất liệu: Phụ kiện lắp đặt: Thép, nắp chụp: Nhựa, Bộ khung vỏ cơ cấu: Hợp kim kẽm
- Lớp phủ hoàn thiện/màu: Phụ kiện lắp đặt: Mạ nikel
- Nắp đậy màu trắng
- Chiều rộng cánh tủ: 1.200 mm = 2 bộ)
- Điện áp đầu vào:100-240 V AC/50-60 Hz/1,3 A
- Điện áp danh định: 24 V DC/2,5 A
- Điện áp đầu ra: Dành cho hệ thống đèn trong khoang tủ: 24 V DC/1,2 A











Đánh giá
Chưa có đánh giá nào.